淺談鋼構高層柱子的安裝接點
鋼構高層柱子的安裝接點一般都采用焊接;圓管柱,方管柱與小尺寸的焊接箱形柱,一般都采用對頭焊接的形式。當采用手工焊接時需要注意保證焊接質量,當有條件時,也可以采用氣體保護的自動焊。
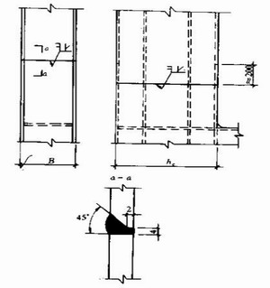
(柱子的安裝接點)
上圖是小尺寸焊接箱形柱的另一種焊接連接的形式;在柱子拼接點的端部焊以橫隔板,并且隔板的周邊需要與柱子的板件焊透,因此要預先在隔板里邊焊以襯板;隔板焊好之后,端面進行銑平,并在周邊銑槽,其尺寸大約為90mm×10mm,工地安裝后,使用高頻焊沿柱子周邊進行焊接(小間隙焊接),這種焊接的接點可以認為與主材等強。
上圖是大尺寸箱形柱的焊接接點。一般將腹板與翼板的拼接位置錯開200mm左右,主要的焊接工作在外部完成,僅在柱里邊進行焊縫的封底工作,有條件時,可以采用氣體保護的自動焊接。這種焊接的接點也可以認為與主材等強,不必再另行計算。
上圖是大尺寸箱形柱采用高強螺栓的接點,這種接點的主要優點是避免了鋼構高層的高空焊接,給鋼構高層安裝創造有利的條件。一般考慮設置雙面拼板,為了便于計算,可以假定每個板件單獨按等強拼接進行計算。
總之,管形與箱形柱子的安裝接點應該以焊接為主。因此,安裝單位應該積極研究改進焊接技術,提高焊接質量,采用先進的焊接方法;當前對于管形和小尺寸的箱形柱子僅能采用焊接的方法。大尺寸的箱形柱有條件時可以采用高強螺栓接點,安裝比較簡便;但是使用拼板將增加鋼材用量,大量的鉆孔給結構制造加大了負擔,并且孔洞也會減弱截面強度。因此,高強螺栓的接點最好盡量少用。
鋼構高層網址:www.ahdgbz.com
聯系地址:陜西省西安市北關正街35號方興大廈8樓
行業動態
- 探討資質如何影響鋼構公
- 鋼構高層腰桁架設置的技
- 陜西鋼構公司專業度排名
- 陜西鋼構公司哪家強?
- 鋼構高層的伸臂桁架設置
- 關于鋼構高層抗震性能鑒
- 如何有效評估鋼構公司的
- 鋼構高層的偏心支撐類型
- 陜西鋼構公司竟用1個秘
- 如何科學計算鋼構高層的
公司動態
行業動態
- H型鋼的主要特征
- 鋼構工程梁和柱的剛接以
- 鋼構工程引弧板、引出板
- 如何給鋼構廠房進行采光
- 鋼構廠房的柱間垂直支撐
- 鋼構廠房樓承板施工方法
- 搭建鋼構廠房閣樓都有哪
- 鋼構住宅的柱間支撐系統
- 鋼構廠房的抗震縫和沉降
- 鋼構廠房地基下沉的處理






鋼構廠房